Skip to the content
gark-studio.comlogo darklogo light
  • Home
  • Our Studio
  • Our Works
  • Contact us
gark-studio.com
  • Home
  • Our Studio
  • Our Works
  • Contact us
gark-studio.com
  • Home
  • Our Studio
  • Our Works
  • Contact us
Category:
HOTELS & ACCOMODATION FACILITIES
Project Year:
2017
Finished Year:
2018
Built Area (m2 or sqft):
12.000 sqm
Project Location::
TIRANE
Type of project (Residential, Mixed-use, Hospitality, Office, Landscape, Urban):
HOSPITALITY
Client:
alpas.2E
Status:
COMPLETED
Lead Architect:
FLOGERT LILA
Design Team:
Nertila Aligjoni, Anduel Çiko, Romeo Azuni, Juxhina Spahiu, Kristi Tashi
Engineering Team:
(Structural, Environmental, Lighting): alpas.2E
Visualization / Rendering by:
Nertila Aligjoni,Anduel Çiko, Eri Skendaj
Photographer:
Hilton Garden Inn – team
Awards / Publications:
N/A
Tags:

HILTON GARDEN INN – TIRANA

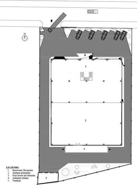
Positioned in Gjergj Fishta boulevard,one of the most frequented locations in Tirana. The whole building it is organized in 12.000 sq m, and accomodates 143 rooms of different typologies. It also includes 5 meeting rooms, 2 event rooms, gym area, bar-restaurant, rooftop, park-ing lot.

Pozicionuar në Bulevard: Gjergj Fishta në një nga zonat më të frekuentuara. E gjithë ndërtesa zgjerohet në afërsisht 12,000 m2 me një strukturë prej 143 dhomash sipas tipologjive të ndryshme. Përfshirë 5 salla takimesh, 2 salla balloje dhe holle, zonë e dedikuar për palestrën, bar-restorant, tarracë-restorant, parkim etj.

Prev Index Next
GRAND HOTEL SARANDA
HOTELS & ACCOMODATION FACILITIES
Ramada Hotel GOLEM
HOTELS & ACCOMODATION FACILITIES
Plaza Hotel Maritim (Interior Design)
HOTELS & ACCOMODATION FACILITIES
Windham Hotel – QERRET
HOTELS & ACCOMODATION FACILITIES
Social

Instagram

Facebook

LinkedIn

Info

Contact

Terms of service

Studio

Contact

Rruga Gjin Bue Shpata, Tiranë 1001, Albania

+355 68 207 8129

info.garkstudio@gmail.com

© 2026 RoviPro

No posts were found for provided query parameters.